Venta Oficina en Punta Carretas - A metros del Golf

Venta USD 140.000

Montevideo | Punta Carretas

  • 1Ambientes
  • 1Baños
  • 27 m2
  • Ref 241782

Descripción

WORKPLACE Real Estate Ofrece:
Oficina para empresa, estudio profesional o consultorio.
Precioso espacio de trabajo en Edificio mixto a estrenar en GOLF, con barbacoa común, sala de fitness.

LA OFICINA:
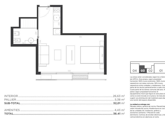
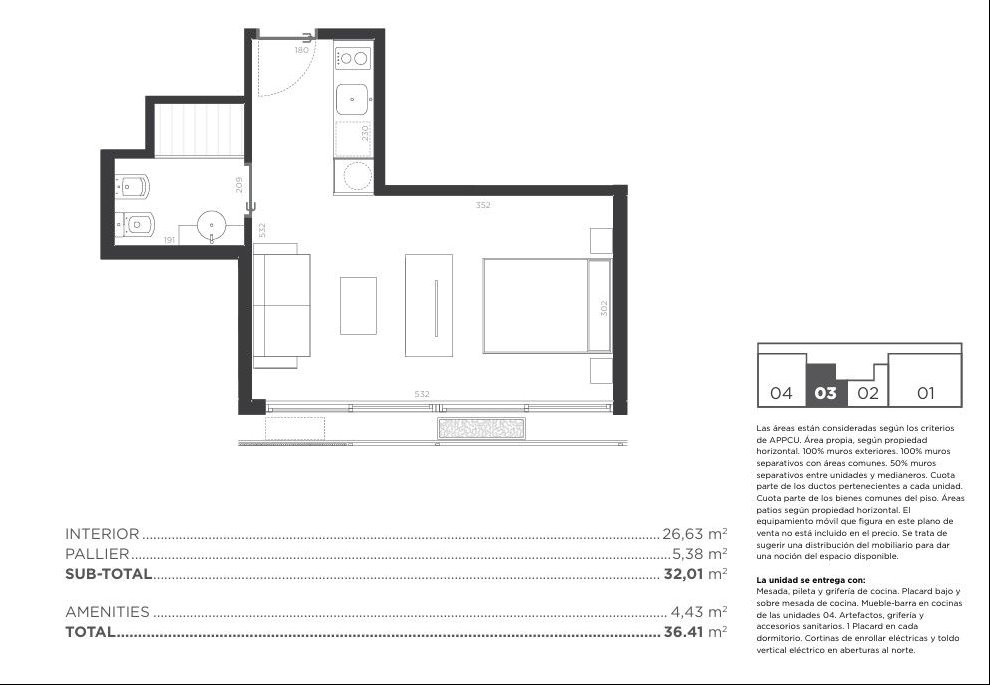
-Área interior: 26,63m2.
-Orientado al Norte con asoleamiento asegurado durante todo el día, calentito y protegido de los vientos.
-Vista alta y despejada. Cada ventana tiene su propia cortina de enrollar y su propio toldo.
-Dispuesto de forma apaisada, con un amplio ventanal doble de 5.30 metros y balcón francés.
-Permite organizarse en dos espacios de trabajo
-1 baño
-Kitchenette
EL EDIFICIO:
Garajes con conexión para autos eléctricos.
Parking de Bicicletas
Portería, Vídeo Vigilancia y Seguridad 24/7.

Gastos Comunes $ 3.400
AMENITIES:
-Amplio hall de acceso con portería y cómoda circulación.
-Salón de fiestas, con terraza con deck al aire libre y parrillero.
-Solarium en rooftop en el piso 10 con vista panorámica, orientación norte con excelente asoleamiento, de espaldas a los vientos dominantes y con intimidad preservada. Terraza con deck, reposeras y ducha escocesa al aire libre.
-Sala Fitness en rooftop en el piso 10 junto al solarium. Con vistas panorámicas y equipada con máquinas de última generación.
-Laundry amplio y cómodo, con máquinas lava y seca ropa de funcionamiento con tarjeta, pileta, mesada, y espacio exterior.
--
CONSULTE: En WORKPLACE REAL ESTATE Somos especialistas en inmuebles corporativos.
* Honorarios por intermediación: 3% + IVA para operaciones de compra-venta. Un mes de alquiler + IVA para operaciones de alquiler

Detalles de la Propiedad

  • Tipo: Oficina
  • Metros Edificados : 27
  • Area total : 27 m²
  • Construído : 0
  • Estado : A Estrenar
  • Gastos Comunes : $3.400
  • Ambientes : 1
  • Baños : 1

Amenities

  • Aire A. Central
  • Plantas: 1
  • Al Frente
  • Vigilancia
  • Portero
  • Kichennette
  • Barbacoa
  • Gimnasio